Аренда офиса, п Островское, Советская ул, 22, Костромская область
- Регион
- Костромская область
| Адрес | п Островское, Советская ул, 22Объект на карте |
- Этаж
- 1 этаж в 1-этажном доме
- Общая площадь
- 109.20 м2
- Дата обновления
- 10.02.2026
- Дата размещения
- 13.12.2025
- Данные ресурса
- 1721 :: 7614164
Код лота: РАД-436256. Реализуется на торгах.
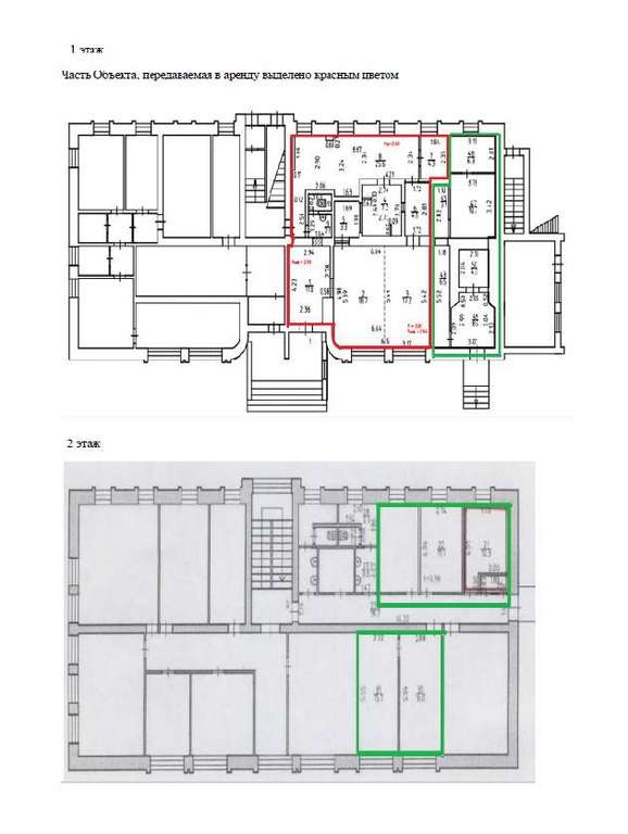
Предлагается к продаже на торгах право заключения договора аренды на нежилые помещения, находящееся в собственности ПАО «Сбербанк», расположенные на 1 и 2 эт. административного здания по адресу: Костромская область, р-н Островский, п. Островское, ул. Советская, д 22. Объект аренды: - неж. помещение 2-го эт., общей площадью 58,0 кв, м, с кадастровым номером 44: 15: 120117: 243 - неж. помещение 2-го эт., общей площадью 11,8 кв. м., с кадастровым номером 44: 15: 120117: 275 - часть неж. помещения 1-го этажа №43, 45, 47, 48, 49, 50, общей площадью 39,4 кв. м., (частью объекта общей площади 141,0 кв. м. с кадастровым номером 44: 15: 120117: 276) . Общая площадь объекта аренды: 109,2 кв. м. Срок аренды: 11 (Одиннадцать) месяцев с даты подписания Сторонами акта приема-передачи Объекта. Начальная цена (величина постоянной составляющей месячной арендной платы) Лота 1 - 12605 рублей 00 копеек, в т. ч. НДС (20%) . Минимальная цена (цена отсечения аукциона) Лота 1 - 8 357 рублей 00 копеек, в т. ч. НДС (20%) . Коммунальные и эксплуатационные платежи по Объекту оплачиваются дополнительно. Местонахождение и транспортная доступность: Нежилые помещения находятся в центральной части пос. Островское, который является административным центром Островского района Костромской области, с развитой инфраструктурой. В ближайшем окружении- жилые дома, администрация, социально-бытовые объекты. В здании расположены подразделения Сбербанка, Россельхозбанка, клиентская служба СФР, страховые компании, аптека. Парковка - стихийная на территории, прилегающей к зданию. В семи минутах ходьбы находится автостанция пос. Островское. Расстояние до г. Кострома составляет 52 км. Факторы инвестиционной привлекательности: - выгодное месторасположение; хорошая транспортная и пешеходная доступность; - возможность приобретения для организации арендного бизнеса; - возможность использовать помещения под различные направления деятельности. Торги проводятся на ЭТП РАД Lot-online, код лота РАД-430244.
https: //catalog. lot-online. ru/index. php?dispatch=products. view&product_id=1583566
Предлагается к продаже на торгах право заключения договора аренды на нежилые помещения, находящееся в собственности ПАО «Сбербанк», расположенные на 1 и 2 эт. административного здания по адресу: Костромская область, р-н Островский, п. Островское, ул. Советская, д 22. Объект аренды: - неж. помещение 2-го эт., общей площадью 58,0 кв, м, с кадастровым номером 44: 15: 120117: 243 - неж. помещение 2-го эт., общей площадью 11,8 кв. м., с кадастровым номером 44: 15: 120117: 275 - часть неж. помещения 1-го этажа №43, 45, 47, 48, 49, 50, общей площадью 39,4 кв. м., (частью объекта общей площади 141,0 кв. м. с кадастровым номером 44: 15: 120117: 276) . Общая площадь объекта аренды: 109,2 кв. м. Срок аренды: 11 (Одиннадцать) месяцев с даты подписания Сторонами акта приема-передачи Объекта. Начальная цена (величина постоянной составляющей месячной арендной платы) Лота 1 - 12605 рублей 00 копеек, в т. ч. НДС (20%) . Минимальная цена (цена отсечения аукциона) Лота 1 - 8 357 рублей 00 копеек, в т. ч. НДС (20%) . Коммунальные и эксплуатационные платежи по Объекту оплачиваются дополнительно. Местонахождение и транспортная доступность: Нежилые помещения находятся в центральной части пос. Островское, который является административным центром Островского района Костромской области, с развитой инфраструктурой. В ближайшем окружении- жилые дома, администрация, социально-бытовые объекты. В здании расположены подразделения Сбербанка, Россельхозбанка, клиентская служба СФР, страховые компании, аптека. Парковка - стихийная на территории, прилегающей к зданию. В семи минутах ходьбы находится автостанция пос. Островское. Расстояние до г. Кострома составляет 52 км. Факторы инвестиционной привлекательности: - выгодное месторасположение; хорошая транспортная и пешеходная доступность; - возможность приобретения для организации арендного бизнеса; - возможность использовать помещения под различные направления деятельности. Торги проводятся на ЭТП РАД Lot-online, код лота РАД-430244.
https: //catalog. lot-online. ru/index. php?dispatch=products. view&product_id=1583566











